蒲公英 - 制药技术的传播者 GMP理论的实践者

搜索
查看: 804|回复: 0
收起左侧

[谈天说地] 一个无尘车间多少钱,无尘车间施工时平面怎么布局

[复制链接]
发表于 2020-11-18 08:59:33 | 显示全部楼层 |阅读模式

欢迎您注册蒲公英

您需要 登录 才可以下载或查看,没有帐号?立即注册

x
一个无尘车间多少钱,平面怎么布局才能满足无尘车间施工条件?洁净厂房的工厂厂址确定之后,合理地进行厂区内的总体布置和妥善处理洁净厂房与非洁净厂房、洁净厂房与各种可能的污染源之间的相对位置,对于建设后的洁净厂房能可靠、经济运行和确保工厂产品质量都至关重要。



厂区内的洁净厂房应布置在环境清洁、人流和物流不穿越或少穿越的地段;为尽量减少外界污染,洁净厂房应布置在离厂区内交通频繁道路较远处,若工厂设有锅炉房等对大气污染较重的设施时,洁净厂房布置应尽量拉大与它们的距离或采取必要的技术措施,减少污染程度。
设有洁净室的厂房内,通常可分为洁净室(区)、洁净室辅助用房、公用动力用房、办公管理用房等,为了方便管理,减少厂区各种动力管线长度,尽量降低对洁净室的污染程度,在规范、标准规定允许的前提下,现今各类设有洁净厂房的工厂在进行工厂总平面布置时,尽量按组合式、大体量的综合性厂房进行布置,可将多个有洁净要求的车间及洁净室辅助用房、办公管理用房以及部分或全部公用动力设施集中布置在一栋综合性厂房内,下图是某电子工厂的总平面布置方案,它由生产厂房、动力设施用房和办公管理用房组成,生产厂房与大部分动力公用设施均设在一幢组合厂房内,既方便管理,又可节约能耗。



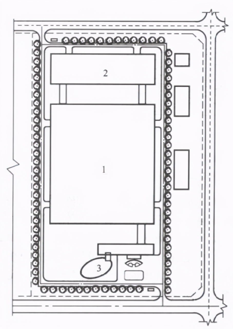
下图是某药品工厂的总平面布置,它由生产厂房、仓储动力公用设施用房组合为一幢厂房,办公管理用房用连廊与生产厂房相连。



为了减少厂区内部的污染,厂区的道路应选用整体性好、发尘量少的材料进行铺砌,通常设有洁净厂房的工厂内的道路面层宜采用改性沥青路面。厂区绿化具有良好的吸尘、阻尘和降低大气中有害物质的作用,设有洁净厂房的工厂内应努力减少甚至不得有裸土地面,厂区所有“裸土”地应种植草坪、盖上卵石等。据报道,绿化带区域的尘埃降低率为22.5%左右,草坪可吸收二氧化碳量约1.5g/(m2 " h ),种植的植物分泌物的杀菌率可达50%。可见对厂区和工厂周围进行绿化不仅可改善环境,而且还可以降尘降菌。洁净厂房周围场地绿化应以种植草坪为主,小灌木为辅,不宜种植观赏花卉及高大乔木。这是因为观赏花卉多为季节性一年生植物,需经常翻土、播种、移植,从而破坏植被,并使尘土飞扬;高大乔木树冠覆盖面积大,其下部难以植被,容易产生扬尘。洁净厂房周围绿化树种应选用不产生花絮、绒毛、粉尘等对大气有不良影响的树种。对生产药品的洁净厂房周围不得种植有花粉的树木、花草,以防花粉污染和招惹昆虫。
对于洁净厂房内要求设置防微振的精密设备、仪器或产品生产过程要求防微振时,在厂址选择或已建工厂内的洁净厂房场地选择过程中,需要对周围振源的振动影响做出评价,以确定该厂址或场地是否适宜建设。周围振源对有防微振要求的设备、仪器或产品生产过程的振动影响,是若干单个振源振动的叠加结果,这种叠加,目前还没有系统的参考数据及实用的计算方法,因此,应立足于实测。过去有的工厂,由于建厂前没有对周围各类振源的振动影响进行实测,洁净厂房建成后发现对精密设备、仪器或对产品生产过程的影响很大,有的甚至难以进行生产、测试,所以说明实测各类振源振动的影响评价是十分重要的,它是拟选择的洁净厂房的厂址或场地是否合适或需采取必要的防微振措施以确保将振源的振动影响控制在允许范围内。
一个无尘车间多少钱,平面怎么布局才能满足无尘车间施工条件?上文的解答您满意吗?如果你还有其他净化工程方面的问题,欢迎随时和奥宣净化联系。

回复

使用道具 举报

您需要登录后才可以回帖 登录 | 立即注册

本版积分规则

×发帖声明
1、本站为技术交流论坛,发帖的内容具有互动属性。您在本站发布的内容:
①在无人回复的情况下,可以通过自助删帖功能随时删除(自助删帖功能关闭期间,可以联系管理员微信:8542508 处理。)
②在有人回复和讨论的情况下,主题帖和回复内容已构成一个不可分割的整体,您将不能直接删除该帖。
2、禁止发布任何涉政、涉黄赌毒及其他违反国家相关法律、法规、及本站版规的内容,详情请参阅《蒲公英论坛总版规》。
3、您在本站发表、转载的任何作品仅代表您个人观点,不代表本站观点。不要盗用有版权要求的作品,转贴请注明来源,否则文责自负。
4、请认真阅读上述条款,您发帖即代表接受上述条款。

QQ|手机版|蒲公英|ouryao|蒲公英 ( 京ICP备14042168号-1 )  增值电信业务经营许可证编号:京B2-20243455  互联网药品信息服务资格证书编号:(京)-非经营性-2024-0033

GMT+8, 2026-1-2 12:52

Powered by Discuz! X3.4

Copyright © 2001-2020, Tencent Cloud.

声明:蒲公英网站所涉及的原创文章、文字内容、视频图片及首发资料,版权归作者及蒲公英网站所有,转载要在显著位置标明来源“蒲公英”;禁止任何形式的商业用途。违反上述声明的,本站及作者将追究法律责任。
快速回复 返回顶部 返回列表